30 Serisi - Metal Gravel Filtreler - Aytok

Ürünler

Uygulama Alanları

Filtre Türleri

Kurumsal

Medya Merkezi

Arama

search
trending_up Filtre
trending_up Otomatik Filtre
trending_up Sulama Sistemleri

Filtre Türleri

30 Serisi - Metal Gravel Filtreler
30 Serisi - Metal Gravel Filtreler
30 Serisi - Metal Gravel Filtreler
30 Serisi - Metal Gravel Filtreler
30 Serisi - Metal Gravel Filtreler
Damla Mikro Sulama Damla Mikro Sulama
Yağmurlama Sulama Yağmurlama Sulama
Sera Sulaması Sera Sulaması
Peyzaj Sulaması Peyzaj Sulaması
Pivot Sulama Pivot Sulama
Belediye İçme Suyu Ön Filtrasyon Belediye İçme Suyu Ön Filtrasyon
Proses Soğutma Suyu Proses Soğutma Suyu
Atık Su Tasarrufu Atık Su Tasarrufu

Temizlik Süreci


Geri yıkama işlemi, su akışını tersine çevirerek filtreyi temizler. Sistemin geri kalanından gelen temiz su, filtre çıkışına yönlendirilirken, aynı anda giriş vanası kapanır ve tahliye vanası açılır. Yukarı doğru akan su, kum yatağını genişleterek sıkışan parçacıkları serbest bırakır ve bu parçacıklar tahliye hattından dışarı atılır. Bu işlem manuel olarak gerçekleştirilebilir veya otomatik olarak ayarlanabilir. Otomatik bir sistem, geri yıkama döngüsü için sürekli temiz su temini sağlamak amacıyla en az iki filtre gerektirir.

Çalışma Prensibi


Kum filtreleri, kirli suyu çok katmanlı bir kum yatağından aşağı doğru geçirerek çalışır. Su, kum ortamının ince boşluklarından geçerken fiziksel ve organik parçacıklar yakalanır ve uzaklaştırılır. Tankın dibinde, bir difüzör veya mantar ağı arıtılmış suyu toplayıp çıkışa gönderirken, kum ortamını güvenli bir şekilde yerinde tutar. Kumun türü ve katmanları, su kalitesine uyacak ve istenen filtrasyon seviyesini sağlayacak şekilde özel olarak seçilebilir.

Teknik Tablo Görseli

30 Serisi - Metal Gravel Filtreler

local_offer 30

AVANTAJLAR

Az Bakım Gerektirme Az Bakım Gerektirme
Ekonomik Ekonomik
Düşük Basınç Kaybı Düşük Basınç Kaybı
Kesintisiz Kesintisiz
Sistem Koruması Sistem Koruması
otomasyona hazi otomasyona hazi
Dayanıklı Dayanıklı

En Zorlu Suların Üstesinden Gelin.

Üstün korozyon direnci için özel kaplamalı çelik bir hazne ile tasarlanan Metal Ortam Filtremiz, derin yatak filtrasyonu için en üst düzey temeli sağlar. İnatçı algleri, organik maddeleri ve ince partikülleri yakalamak için çözümünüzü hassas bir ortam kombinasyonuyla (kum, bazalt, antrasit vb.) özelleştirin. İster basit manuel kontrol ister akıllı otomatik geri yıkama için tamamen yapılandırılabilir olan bu filtre, tavizsiz performans için tam operasyonel ihtiyaçlarınıza uyum sağlar.

GENEL ÖZELLİKLER

Gövde Malzemesi S235JR/SS304L/SS316L
Maksimum Çalışma Basıncı 8 bar; 116 Psi
Maksimum Çalışma Sıcaklığı 60 °C; 140F
Filtreleme Yöntemi Difüzör veya Mantar; 3090'lar için: Difüzör
Boyama Yöntemi Elektrostatik Toz Boya Kaplama
Boya Kaplama Malzemesi Epoksi-Poliester
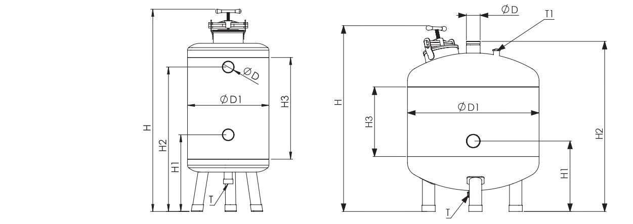
Teknik Çizim Görseli
KOD D D1 T T1 H H1 H2 H3 Debi Ağırlık
(kg)
İnç (mm) m³/h GPM(US)
3020 2 18 3/4 - 1250 400 900 700 15 66 52
3025 2 1/2 24 2 - 1450 560 1060 750 20 88 77
3030 3 24 2 - 1450 560 1060 750 24 105,6 82
3040 4 24 2 - 1700 560 1260 1000 28 123,2 94
3050 3 32 2 1 1195 420 1100 500 45 198 115
3060 3 36 2 1 1195 420 1100 500 50 220 132
3070 4 36 2 1 1195 420 1100 500 55 242 140
3080 4 48 2 1 1185 520 1100 300 80 352 250

 

KOD D D1 D2 T1 H H1 H2 H3 Debi Ağırlık
(kg)
Inch mm m³/h GPM(US)
3090 4 36 3 - 1800 410 1250 1200 70-90 308-396 285
3090B 4 36 3 1 2120 410 410 1200 70-90 308-396 320
3090S 4 36 3 1 2780 410 410 1200 70-90 308-396 340
3090SM 4 36 3 1 3000 410 410 1200 70-90 308-396 360

 

Filtre Kodu Mantar Tipi İçin Kum Kapasitesi (kg) Difizör Tipi İçin Kum Kapasitesi (kg)
3020 150 -------
3025 200 250
3030 200 250
3040 200 250
3050 300 350
3060 350 400
3070 350 400
3080 400 500
3090 - 800

Bize Mesaj Gönderin

Bizimle iletişime geçmek için aşağıdaki formu doldurun.

Ürün Detayı

30 Serisi - Metal Gravel Filtreler
30 Serisi - Metal Gravel Filtreler
30 Serisi - Metal Gravel Filtreler
30 Serisi - Metal Gravel Filtreler
30 Serisi - Metal Gravel Filtreler

30 Serisi - Metal Gravel Filtreler

local_offer 30
Damla & Mikro Sulama Damla & Mikro Sulama
Yağmurlama Sulama Yağmurlama Sulama
Sera Sulaması Sera Sulaması
Peyzaj Sulaması Peyzaj Sulaması
Pivot Sulama Pivot Sulama
İçme Suyu Ön Filtrasyon İçme Suyu Ön Filtrasyon
Proses & Soğutma Suyu Proses & Soğutma Suyu
Atık Su Geri Dönüşümü Atık Su Geri Dönüşümü

GENEL ÖZELLİKLER

Gövde Malzemesi S235JR/SS304L/SS316L
Maksimum Çalışma Basıncı 8 bar; 116 Psi
Maksimum Çalışma Sıcaklığı 60 °C; 140F
Filtreleme Yöntemi Difüzör veya Mantar; 3090'lar için: Difüzör
Boyama Yöntemi Elektrostatik Toz Boya Kaplama
Boya Kaplama Malzemesi Epoksi-Poliester

Temizlik Süreci

Geri yıkama işlemi, su akışını tersine çevirerek filtreyi temizler. Sistemin geri kalanından gelen temiz su, filtre çıkışına yönlendirilirken, aynı anda giriş vanası kapanır ve tahliye vanası açılır. Yukarı doğru akan su, kum yatağını genişleterek sıkışan parçacıkları serbest bırakır ve bu parçacıklar tahliye hattından dışarı atılır. Bu işlem manuel olarak gerçekleştirilebilir veya otomatik olarak ayarlanabilir. Otomatik bir sistem, geri yıkama döngüsü için sürekli temiz su temini sağlamak amacıyla en az iki filtre gerektirir.

Çalışma Prensibi

Kum filtreleri, kirli suyu çok katmanlı bir kum yatağından aşağı doğru geçirerek çalışır. Su, kum ortamının ince boşluklarından geçerken fiziksel ve organik parçacıklar yakalanır ve uzaklaştırılır. Tankın dibinde, bir difüzör veya mantar ağı arıtılmış suyu toplayıp çıkışa gönderirken, kum ortamını güvenli bir şekilde yerinde tutar. Kumun türü ve katmanları, su kalitesine uyacak ve istenen filtrasyon seviyesini sağlayacak şekilde özel olarak seçilebilir.

AVANTAJLAR

Az Bakım Gerektirir Az Bakım Gerektirir
Ekonomik Ekonomik
Düşük Basınç Kaybı Düşük Basınç Kaybı
Kesintisiz Kesintisiz
Sistem Koruması Sistem Koruması
Otomasyona Hazır Otomasyona Hazır
Dayanıklı Dayanıklı

Güçlü Filtrasyon, Zeki Tasarım.

En Zorlu Suların Üstesinden Gelin.

Üstün korozyon direnci için özel kaplamalı çelik bir hazne ile tasarlanan Metal Ortam Filtremiz, derin yatak filtrasyonu için en üst düzey temeli sağlar. İnatçı algleri, organik maddeleri ve ince partikülleri yakalamak için çözümünüzü hassas bir ortam kombinasyonuyla (kum, bazalt, antrasit vb.) özelleştirin. İster basit manuel kontrol ister akıllı otomatik geri yıkama için tamamen yapılandırılabilir olan bu filtre, tavizsiz performans için tam operasyonel ihtiyaçlarınıza uyum sağlar.

DÖKÜMANLAR

Teknik Çizim Görseli
Teknik Tablo Görseli
KOD D D1 T T1 H H1 H2 H3 Debi Ağırlık
(kg)
İnç (mm) m³/h GPM(US)
3020 2 18 3/4 - 1250 400 900 700 15 66 52
3025 2 1/2 24 2 - 1450 560 1060 750 20 88 77
3030 3 24 2 - 1450 560 1060 750 24 105,6 82
3040 4 24 2 - 1700 560 1260 1000 28 123,2 94
3050 3 32 2 1 1195 420 1100 500 45 198 115
3060 3 36 2 1 1195 420 1100 500 50 220 132
3070 4 36 2 1 1195 420 1100 500 55 242 140
3080 4 48 2 1 1185 520 1100 300 80 352 250

 

KOD D D1 D2 T1 H H1 H2 H3 Debi Ağırlık
(kg)
Inch mm m³/h GPM(US)
3090 4 36 3 - 1800 410 1250 1200 70-90 308-396 285
3090B 4 36 3 1 2120 410 410 1200 70-90 308-396 320
3090S 4 36 3 1 2780 410 410 1200 70-90 308-396 340
3090SM 4 36 3 1 3000 410 410 1200 70-90 308-396 360

 

Filtre Kodu Mantar Tipi İçin Kum Kapasitesi (kg) Difizör Tipi İçin Kum Kapasitesi (kg)
3020 150 -------
3025 200 250
3030 200 250
3040 200 250
3050 300 350
3060 350 400
3070 350 400
3080 400 500
3090 - 800

Bize Mesaj Gönderin